Life is not about maximizing everything,
it's about giving back something,
such as light, space, form, serenity, happiness.
生活不是要使一切都最大化,
而是要回馈某些东西,
例如光线,空间,形式,宁静,快乐。
------------------------------------------------Glenn Murcutt

旭辉 · 南昌江来中项目 客户定位在90-95后 的年轻客群比如时尚博主,网红主播、自媒体等。他们对生活充满期待,并对生活有高品质生活追求自由探索的工作模式,知晓世界各地的文化艺术,流行趋势,喜欢时尚,乐于研究美学,一群怀揣梦想的新年轻精英群体。


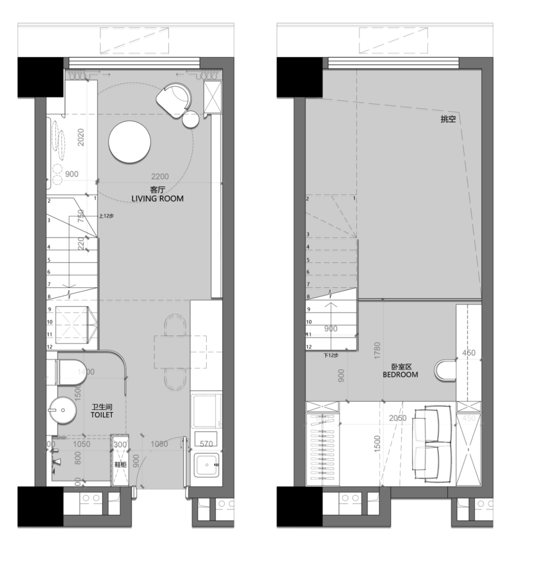
84㎡户型以粉白色块划出展示和办公等不同功能分区,围绕旋转楼梯有序展开。PINK LADY的主体色调将整体空间定义为女性的新力量。


入口 The entry
进门处白色立柱展示屋主近期的收藏喜好,潮玩与黑胶,是流行与古典的有机结合。水磨石与粉的搭配为空间定下活泼时髦的基调。


粉色由展示柜顺势延展至顶面,挑高的设计让空间张力十足。展示柜一侧,直播选品在灯光下有序排列,既满足工作需要,又自成装饰。


工作区 Work space
展示架尽头是工作区域,直播与办公区域各据一方。直播区霓虹灯氛围感十足,圆形地毯划分区域又兼具收声效果。手机支架、环形灯、耳机等直播必备器材让小空间也能随时进入工作模式。


另一侧办公区域,顶部镜面设计视觉延展纵向空间。不规则办工桌搭配郁金香造型椅,散漫自由中不乏理性考量。一步之遥让台前与幕后紧密联系,又相互独立。




洽谈休闲区 Chating & Resting
透明玻璃隔而不断,上下层空间在视觉上保持对话关系。相较于一层工作区的活力,奶咖配色为二层增添几分沉稳与平和。洽谈区位于靠窗一侧,简洁的座椅选择,温馨的场景布置让人倍感舒适,面对面的布局模式也让交流更为专注。


▲ 84㎡ 自由办公


43㎡空间以柠檬黄和薄雾蓝形成色彩对冲,营造出青春活力的氛围。透明玻璃和镂空阶梯的设计最大限度地保证了各区域自然光线充足。隐藏灯带覆盖全屋,曲线优美流畅,科技感十足。

深海蓝是空间里的另一个视觉重点,隔层的设计也增加了更多立面储物展示空间。


厨房 Kitchen
二字型厨房设计,简约实用,满足小家庭日常烹饪所需。巨幅科比乐高拼图无疑是客厅最吸引眼球的艺术装置,篮球的热血和激情在24号球衣中呼之欲出。


客厅 Living room
设计师将水磨石从地面一路延展至阶梯,顺势抬高沙发区域,整体空间更具连贯性,也为会客区新添了别样的座感体验。


卧室 Bedroom
二层空间以蓝黄色块区分睡眠区域和办公区域。悬浮的白色书桌更显通透,红色座椅造型飘逸,为理性的布局带来几分柔软。


格子之间尽是书籍、潮玩和音响设备,家不过是承载个人喜好的容器。睡眠区域被包裹其中,让休息回归纯粹,也让梦境更为梦幻。


▲ 43㎡ 空间探索
项目信息 INFO
S.U.N 近期作品回顾
▼

旭辉六安中心

融创哈尔滨四季宸阅

融创哈尔滨四季宸阅

卓越嘉兴晴翠样板间

旭辉江来上府售楼处


陈先生 15858254311


发表评论
发表评论: