项目信息 INFO
-
项目名称 | 旭辉 · 六安旭辉中心
业主单位 | 旭辉地产
业主团队 | 皖赣旭辉设计研发部
项目地址 | 安徽六安
室内面积 | 124m² / 111m²
室内设计 | 孙文设计事务所
创意总监 | 孙洪涛
室内团队 | 周国亮 许文强 段俊逸
软装团队 | 刘倩 樊海梅 蒋可馨 彭玲玲
深化团队 | 郑雪玲 钱中进 吴冬莲 李梅
项目摄影 | 一千度
This is a space where we can stop and savor,
Each of us can find our shadow here.
这是一个可以停下来细细品味的空间,
每个人都能在这找到各自的影子。
心有多大
卧室就可以有多大


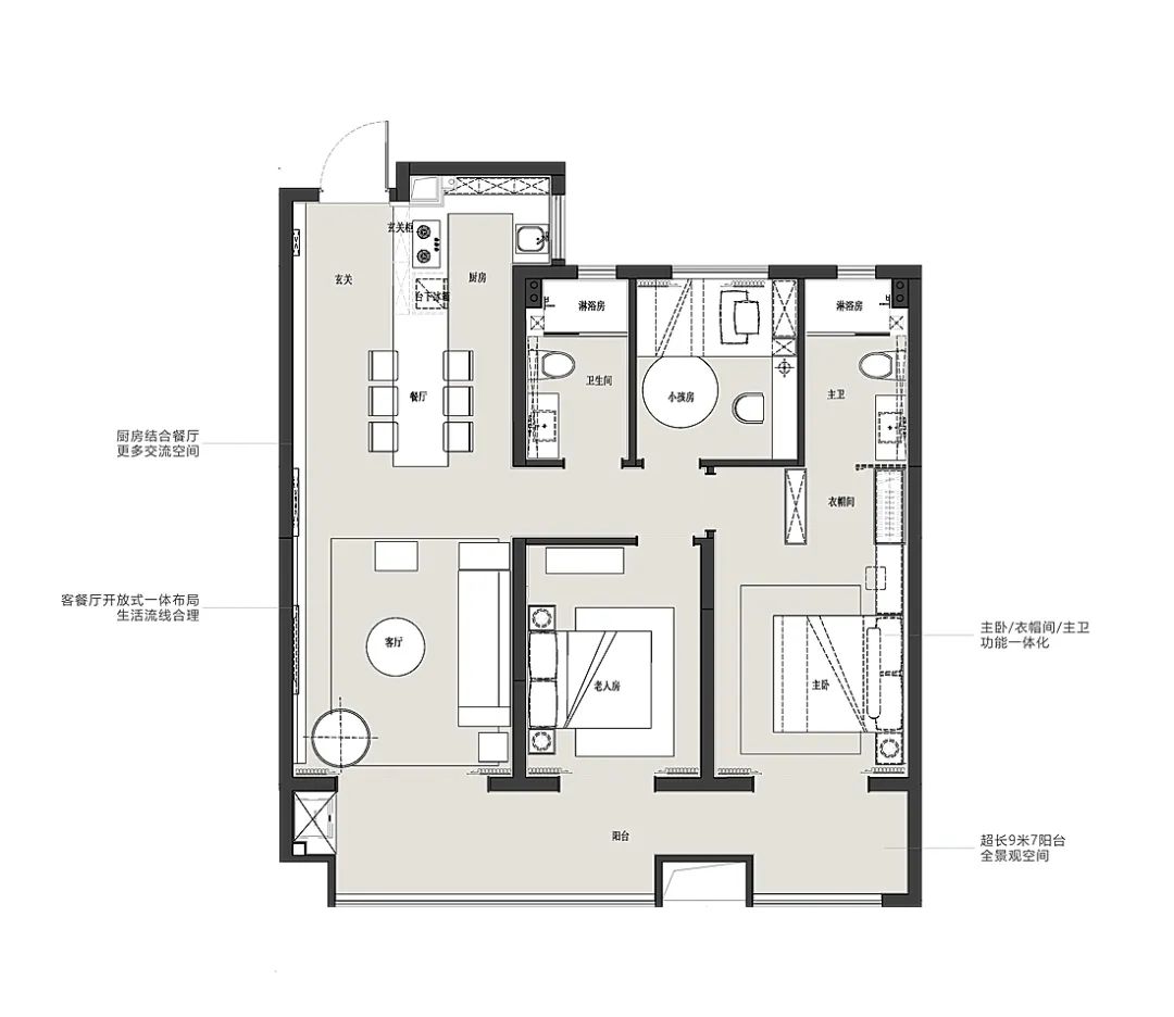
S.U.N DESIGN 作品 六安旭辉中心 124 m²户型 打破起居室的固有思维,以镜面移门取缔电视背景墙,将多功能空间、阳台与客厅进行有机结合,探索居家空间的无限可能。通过空间布局重组,不同家庭成员都能在起居室自得其乐,彼此共生又相互独立。
124


FLOOR PLAN 平面布局


客厅 Living room
克莱因蓝玻璃茶几线条凌厉、极具艺术感,无疑成为客厅的点睛之笔。大理石的天然纹理如水墨画般,气势恢宏地在墙面上肆意泼洒,成为客厅独特的风景。


一抹暖橙色的灯光在玄关处晕染,更衣换装之间,卸去负累与面具,轻松舒适的居家模式就此打开。储物柜巧妙利用立面空间,提供超大收纳空间,横向连接玄关与餐厨空间,承载一家五口日常所需。


开放式厨房采用L型布局,以黑白灰作为主色调,打造时髦的现代餐厨空间。大理石与金属在经典蓝的映衬下更加凸显质感,顶部灯光与底部黄铜遥相呼应,为空间注入几分暖意。


多功能空间 Multi-functional
多功能空间可作为一个灵动多变的空间,采用移门镜面设计,隔而不断,开门时感受实体空间交流互通,关门时体会镜面空间双倍放大,在日常生活增加别样空间体验。


主卧 Master's bedroom
主卧围合式设计连接睡眠区与卫生间,最大程度地增加收纳空间的同时,也让动线更加高效合理。 深蓝在背景墙上大肆铺染,沉稳静谧的色调令人心生平静。大地色系拼接地毯与地板相互映衬,木材温润、布艺柔软。

银白、金属与皮革的组合带来SPACE AGE的信号,捧书细读,重温黄金时代的设计经典,理想与现实的距离似乎并不遥远。
梦想和热情
总有一个在路上

111 m²户型 以Tom Dixon三色球形吊灯高低排布,装点吧台区域。白色大理石台面延长厨房使用空间,搭配棕色皮面座椅,满足日常用餐需求。橙色饰面,缀以金属栅条,高贵、典雅又不失活力。


FLOOR PLAN 平面布局


客餐厅 Living & Dining
黑白肖像带来悠远绵长的意境,蜿蜒附着着的霓虹灯饰引人玩味。杠杆摇曳,遐思不止。生活远不止是烟火,艺术与美近在咫尺。


Tom Dixon的花朵状灯饰带来关于设计与艺术的界限思考。先锋灯光艺术家Paolo Scirpa在无限霓虹灯循环装置中寻找空间与物的关系。法国Leblon Delienne的潮玩是对童年的致敬,也是年轻一代的生活宣言。

主卧延续暖橙的活力与雅致,通过色彩与材质的有机组合,营造空间的层次与韵律。设计师以墙裙为灵感,延伸床背板,与床品、地毯进行色块呼应。


步入式衣帽间分区合理、实现收纳空间最大化。设计师将橱窗设计理念引入衣橱,通过衣物的陈列,寻找收纳的艺术化表达。流苏蓝色椅墩平衡几何的刚性,带来几分飘逸与温柔。


次卧 Guest's bedroom
橙色在次卧呈渐次变化,明暗交替之间预示时光易逝、惜取当下。布艺、皮革与实木,不同材质相互碰撞,多变的触感丰富日常起居的五感体验。


儿童房 Kid‘s room
设计师将这一美好希冀运用到空间设计中家具如乐高积木般一体式堆叠,最大化利用空间又不失个性化的表达。巨幅篮球少年涂鸦、樱木手办与签名版足球,少年的清新与朝气扑面而来。

阳台 Balcony
阳台串联起客厅、主卧与次卧,成为第二家庭共享空间。满墙花卉色彩浓郁、对话室外空间的绿意自然。静可看书、品茶、赏花;动则烧烤、观影、轰趴。在这里,打开都市氧吧的万种可能。


发表评论
发表评论: