项目信息 INFO
项目名称 | 政务壹号售楼处
业主单位 | 上坤恒新
业主团队 | 俞玮 朱俊 刘曼
项目地址 | 界首
室内面积 | 988㎡
室内设计 | 孙文设计事务所
创意总监 | 孙洪涛
室内团队 | 周国亮 王孟南
软装团队 | 卢佳 郑可欣 周页彤
深化团队 | 钱中进 邓嘉敏
项目摄影 | 张辉
IT WAS AN AGE OF MIRACLES
IT WAS AN AGE OF ART
IT WAS AN AGE OF EXCESS
一个奇迹的世代,
一个艺术的时代,
一个鎏金璀璨的时代。
——
《了不起的盖茨比》-- 菲茨杰拉德
《THE GREAT GATSBY》-- Fitzgerald

精致优雅、摩登时尚,
二十年代既是时装史起承转合的重要节点,
也是装饰艺术的诞生阶段。
设计以黑白为主调拉开帷幕,
致敬1920s的文化与艺术,
以“Art Deco”风潮重新拾起鎏金幻梦。




空间高耸开阔,由晶莹的水晶片繁饰的立柱直冲云霄,草叶纹装饰的旋转楼梯徐徐攀升,游走于古典和现代之间。


几何、机械样式和图像化的艺术样式,是Art Deco钟爱的母题,象牙白地面与水晶灯立柱交相辉映,黑色装饰线极致勾勒出精髓。烘托出一派典雅的气质。


石膏造型的叠加凹显出幻梦年代的贵族精神,重复、对称的韵律交织成美妙图案,缥缈而华丽。于当代生活而言,是一次对历史的致敬,也是一次超越时空的心灵连接。



如设计师David Scott所说,尽管装饰艺术会给人镀金和奢华的感觉,但它更加“时尚”而精致。细致入微的细节装点了幻梦的丰富性,每一根线条,每一颗水晶将回忆中的经典画面投射到现实之中。


马提尼摇酒器、冰桶与装满烈酒的杯瓶,克莱斯勒大厦的黑白摄影,展现生动的结构之美。爵士时代的生命力被激活,任由你在喧嚣的20年代尽情摇摆。


皮革与布艺进行多重的叠搭,咖橙色和尼加拉蓝的激情撞色,带有金属味道的金、银、古铜交相辉映,陈设品彰显了品味亦是彰显价值体系。



鲨鱼纹、曲折锯齿图形,粗体与弯曲的曲线,在变幻无穷之中,空间规整而富有层次感。


放射状的装置和提炼自齿轮元素的镜面,象征了新时代的黎明曙光。云朵灯具绵软而柔美,为场域增添几分亲和力。

用现代手法来展现大都会的往昔风采,再现装饰艺术的精髓,是一次回眸和致敬。以文化、材料、科技全面碰撞,所造就出的时代奇迹虽不可重演,但却俨然成为艺术史中一块亮眼的瑰宝,为当下生活带来无限的激情与灵感。
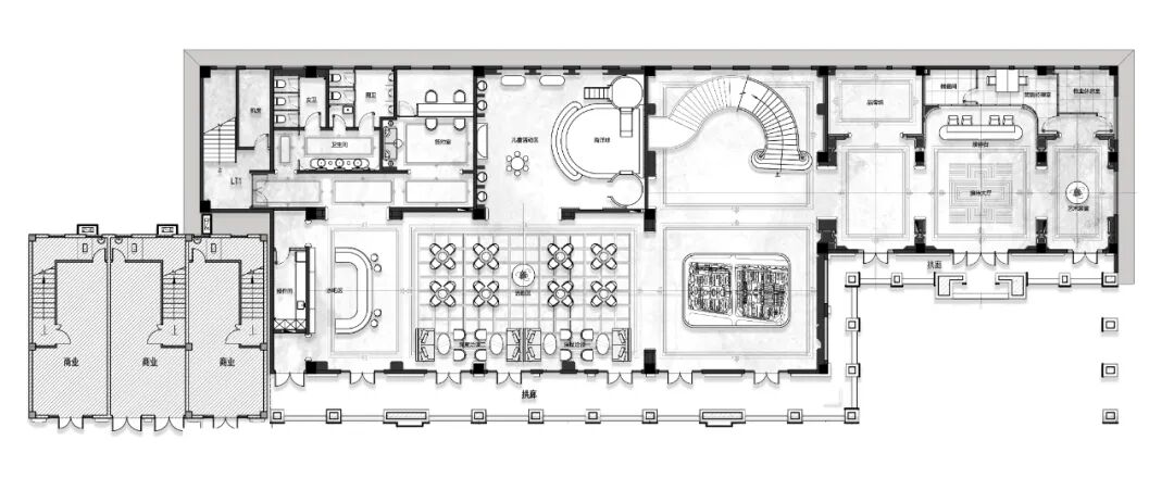
平面布置 FLOOR PLAN


Q1: 能简单说一下您对这个项目的理解吗?
项目位于四五线城市,大都会风格的特征不仅仅恰巧符合当地,也将会是一个很好的切入点,将传的‘历史感’减弱,将时髦和奢华品质感同时融入,兼容并包,用全新的设计方式打造属于当地人们的一种风格。
Q2: 在现代风格成为当下主流的情况下,为什么界首项目会定位为大都会风格呢?
相比现代风格的简约,界首当地更偏向奢华感的氛围;并且整个项目各专业的步调是一致的,大都会的主题始终贯穿整个项目,无论是街区、景观、建筑还是室内。
视觉层面:人们的视觉,强烈的符号特征,对建筑的有机线条特征和室内空间大胆的几何的色块对比征,高反光奢华材质搭配在一起,所产生的深刻分类认识。
Q3: 在项目过程中,最大的挑战和难点是什么呢?
复古元素和现代元素的MIX和均衡;
施工进度与细节的取舍;
最大的难点是“矩阵式的困难”,X轴:时间线(短周期)、Y轴:细节多(细节多)、Z轴:空间呈现(空间的设计还原度)。
Q4: 通过这个项目,对于未来四五线城市的项目研发有什么总结吗?
四五线城市相比一二线城市:主要差别在于“审美时间长线”的问题上,相对来说要晚3-5年时间,对于空间的感受,还是比较崇尚“富贵、奢华、多金”的感官层面.


发表评论
发表评论: